气动三通快装球阀是一种用于管道中介质换向、合流及分流的阀门,三个管道中任何一个管道都可以作为入口或出口。气动三通快装球阀主要由T型(或L型)三通球阀与气动执行器两部分连接组成,按连接方式可分为法兰及内螺纹,可以满足不同的生产工艺要求。L型气动三通快装球阀是通过对两条相互垂直的通道进行介质流向的切换或截断,起到分配作用;T型气动三通快装球阀不仅可以切换介质流向,还可以使三个通道互相连通或关闭其中任意一条通道,起到分流、合流作用。
气动三通快装球阀与电气阀门定位器配套,输入4~20mADC信号及0.4~0.7MPa气源即可控制阀门运转,实现调节压力、流量、温度、液位等参数。气动三通快装球阀通过配行程限位开关、电磁阀、减压阀及0.4-0.7MPa气源可实现开关操作,并送出二对无源触点信号指示阀门的开关。
以上是气动三通快装球阀的产品简介,接下来我们具体看看气动三通快装球阀工作原理、结构图及产品优点。
气动三通快装球阀工作原理:
气动三通快装球阀是带有圆形通道的球体作启闭件,且球体随阀杆转动实现启闭动作的一种阀门,其启闭件是一个有孔的球体,围绕着垂直于通道的轴线旋转,从而达到启闭通道的目的。其阀座与端面法兰距离近,物料滞留少,结构紧凑,密封性能优越。
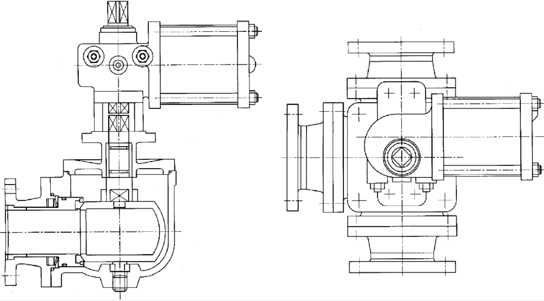
气动三通快装球阀结构图:

  
气动三通快装球阀产品优点:
       (1)流体阻力小,其阻力系数与同长度的管段相等;
        (2)气动三通快装球阀结构简单、体积小、重量轻;
        (3)球阀密封面材料广泛使用塑料、密封性好、紧密可靠;
        (4)旋转90°即可达到全开到全关,操作方便,开闭迅速,便于远距离的控制;
        (5)球阀结构简单,维修方便,活动的密封圈拆卸更换都比较方便;
        (6)在全开或全闭时,球体和阀座的密封面与介质隔离,以便介质通过时,不会侵蚀气动三通球阀密封面;
        (7)适用范围广:从小到几毫米、大到几米的通径,从高真空至高压力都可应用。
通过对气动三通球阀工作原理及产品优点的介绍,想来大家对气动三通快装球阀这个产品有了一定的了解。如想了解关于气动三通快装球阀更多的内容,可联系海胜阀门技术人员沟通。











